Seaside Apartments @ 1620 Broadway Ave.

1620 Broadway Ave.

Project Background:

On October 27, 2023 an Architectural Review application was filed by KB Bakewell, the developer of Campus Town, to partially meet the Offsite Affordable Housing requirements of the Campus Town Affordable Housing Agreement. If approved, the proposed development will satisfy 21 of 45 offsite affordable housing units required for Phase I, or 21 of 225 affordable housing units for the entire development.

 

About the Project:

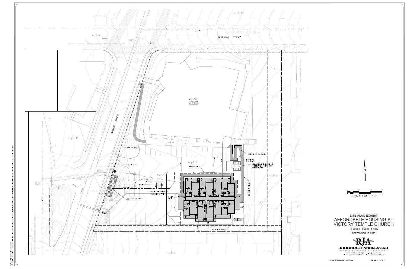
The location of the proposed multifamily building is the southeast corner of the site, in an area occupied by a portion of an existing 78-space parking lot. The property also has an additional 31 parking spaces along the eastern boundary, bringing the total on-site parking spaces to 109. The project site is located within one-half mile of a stop along an existing high-quality transit corridor at the intersection of Broadway Avenue and Noche Buena Street.

The proposed project is a three story, 21-unit affordable housing project consisting of studio, one bedroom and two bedroom units, all of which provide private balconies ranging in size from 60 s.f. to 152 s.f. The proposed project is a 100% very low-income project. Covered stairways on the east and west ends of the building provide access to the corridors and unit entrances for all three floors.

The proposed building height is 42’-7”, where the code allows for 48ft maximum for multifamily structures; and the proposed location of the building on the southeast portion of the parcel places it far from the surrounding side and front property lines, greatly exceeding the minimum setback requirements.

1620 Broadway Ave. Apartments

Proposed Project Renderings from Multiple Angles

View locations for proposed Victory Temple affordable housing

Feel free to navigate through the following images that highlight the vantage point from which they were captured:

  1. 1 View from 03.JPG
  2. 2 View from 9.JPG
  3. 3 View from 43.JPG
  4. 4 View from 95.JPG
  5. 5 View from 97.JPG
  6. 6 View from 99.JPG
  7. 7 View from 3596.JPG
  8. 8 View from N4.JPG

Proposed Project Plans: